Studio di Ingegneria e Architettura Spada

Viale XXIV Maggio 17/A, Gorizia

lunedì - venerdì

9.00 - 18.00

Email

info@progettispada.it

Telefono

0481 32393  |  392 7197012

Facebook

Casa Boutel

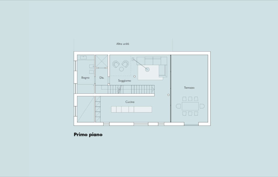
Ci troviamo nella cittadina marittima di Grado, all’interno del quartiere popolare anni ’50 prevalentemente abitato dai pescatori locali. La richiesta del committente è quella di realizzare, previa demolizione, un edificio in aderenza a una serie di case a schiera, con connotati architettonici contemporanei, linee pulite e spazi minimali. Il fabbricato dovrà diventare la casa vacanze per una famiglia e i loro amici e si dovrà porre attenzione sugli spazi di interazione/relazione, con un ampio living e spazi esterni di condivisione. L’idea progettuale è quella di realizzare una Chic Box, un volume bianco, minimale, che da un lato cerca di relazionarsi con il contesto circostante mentre dall’altro vuole portare innovazione a un quartiere che di contemporaneo ha ben poco. Mediante elementi traslucidi, aperture di dimensioni differenti e un’illuminazione ad hoc, si vuole immaginare questa scatola come un contenitore di elementi che invitano e invogliano l’ingresso all’edificio. All’interno si trovano spazi inaspettati: vuoti, doppie altezze e  stanze irrorate da luce naturale.

Cliente

Privato

Data

Giugno 15, 2023

Categoria

Architettura, Ristrutturazione